

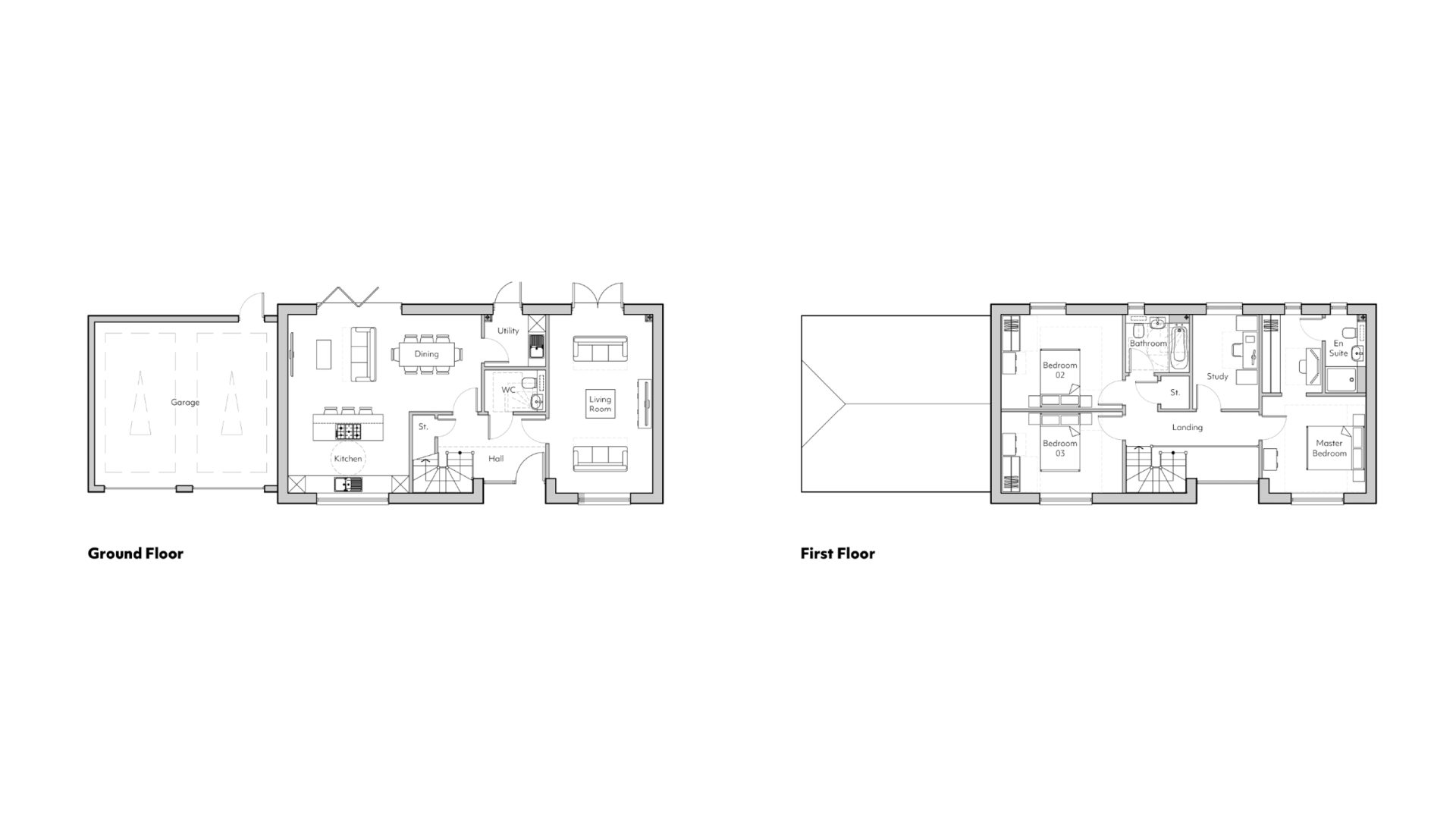
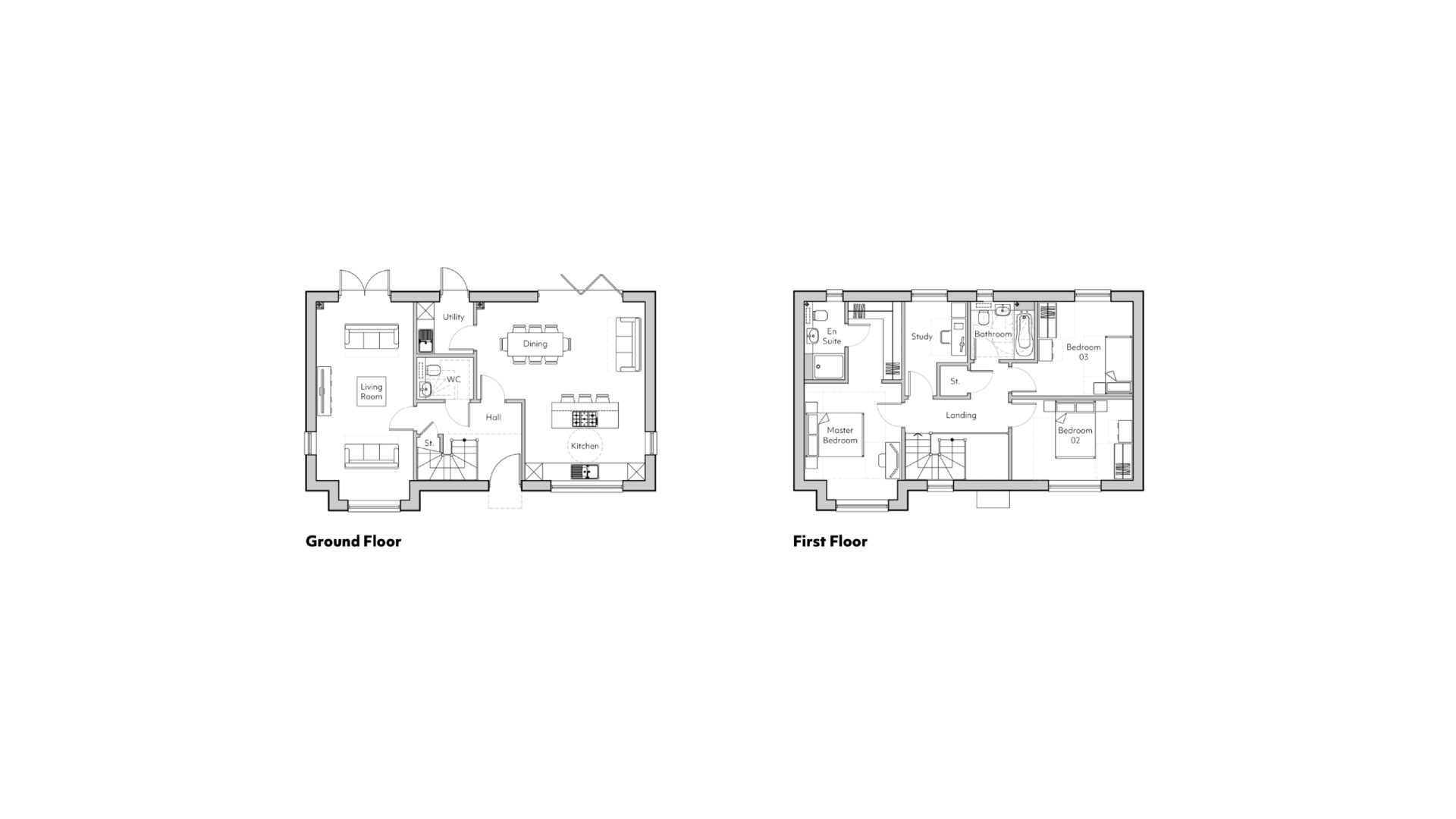
Set within open farmland, this residential development replaces 34,000 sqft of agricultural barns. Drawing from Essex’s rural architecture, the scheme creates nine courtyard homes around a reimagined farmhouse. Our planning team guided the project through pre-app stages, securing delegated approval.








