

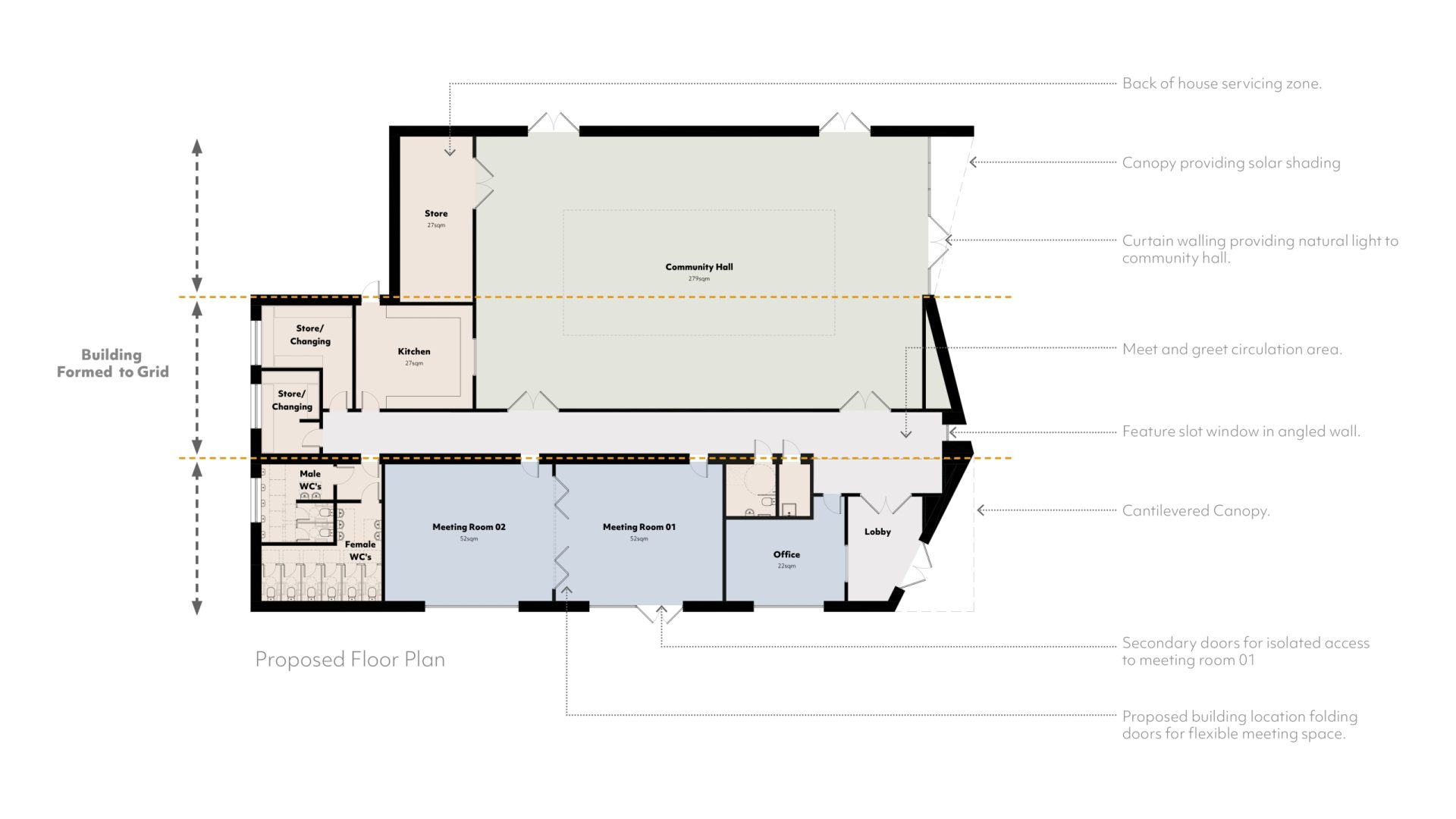
A focal point within the Kings Barton Farm development, the community centre was designed as a landmark for both new and existing residents. Contrasting materials and dynamic rooflines define its form, with each pitch expressing the building’s internal use from the main hall to the smaller meeting rooms.


