

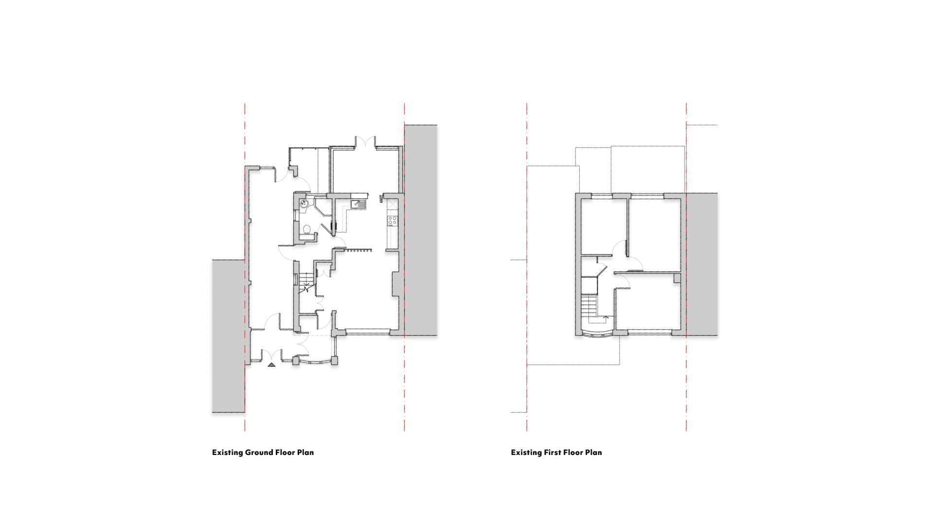
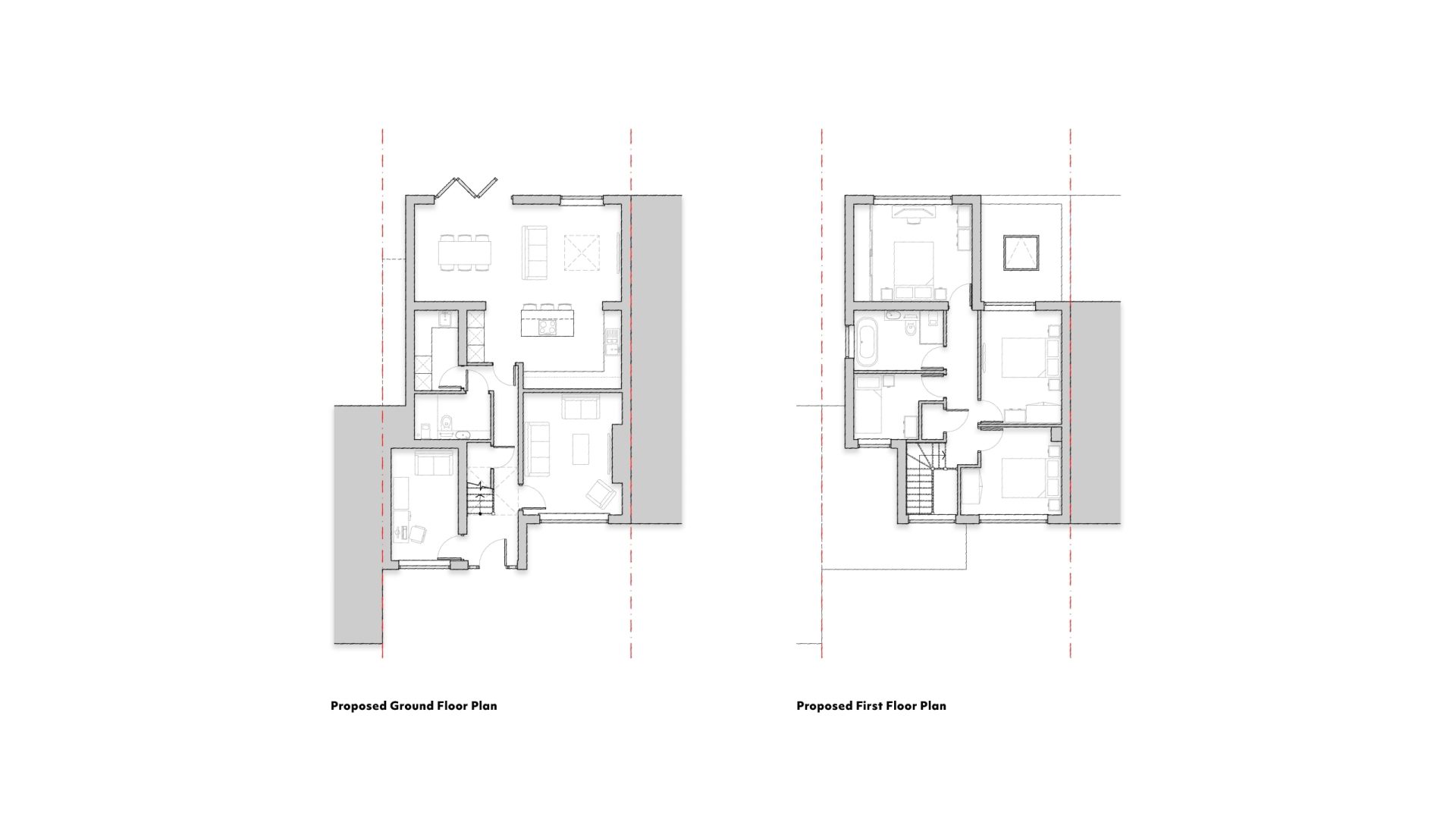
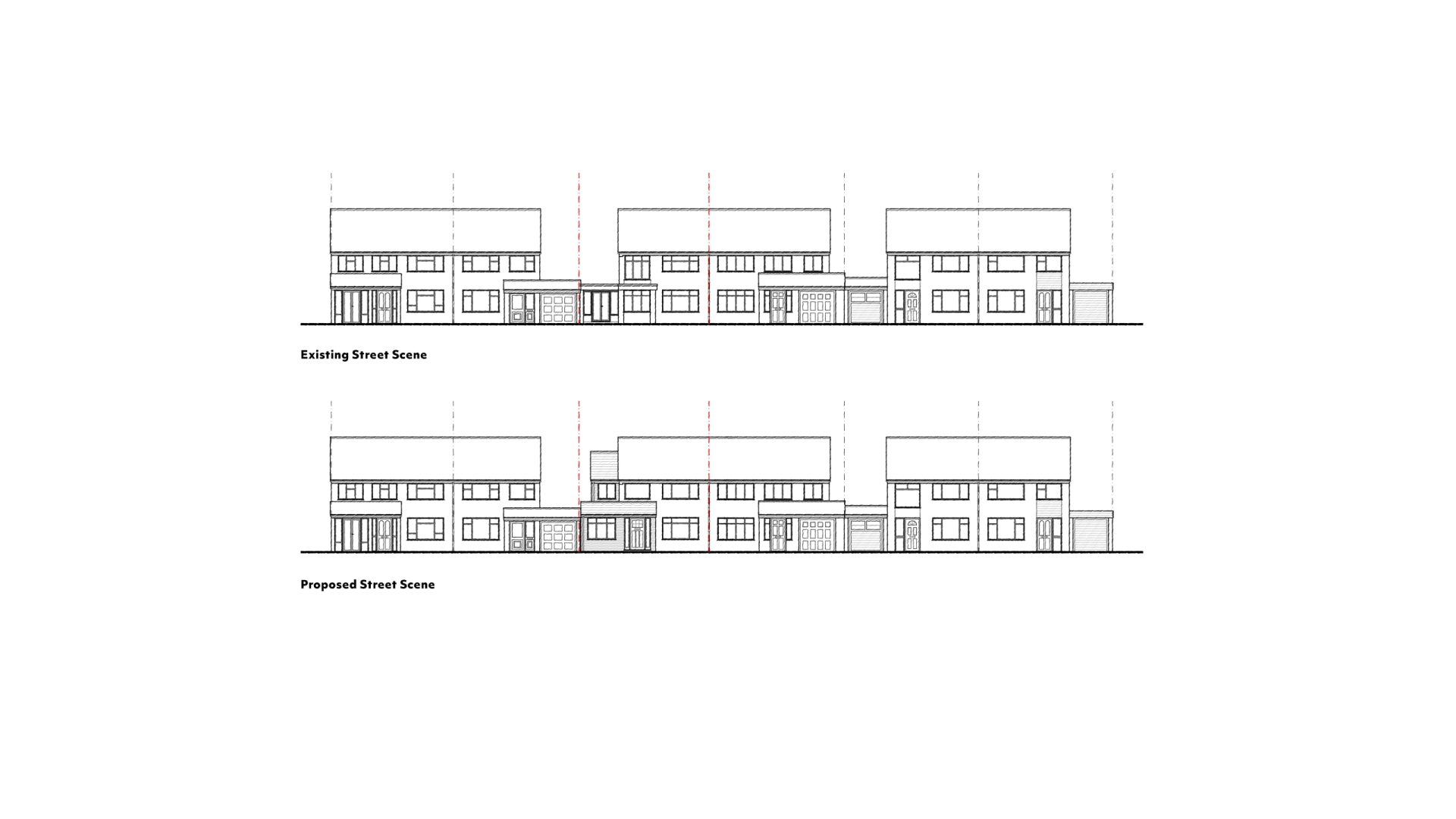
From planning approval to completion, we worked closely with our client to transform their home into a light-filled, family-focused space. A two-storey side and rear extension introduces a striking double-height entrance and open-plan living, with a new bedroom and bathroom above.





