











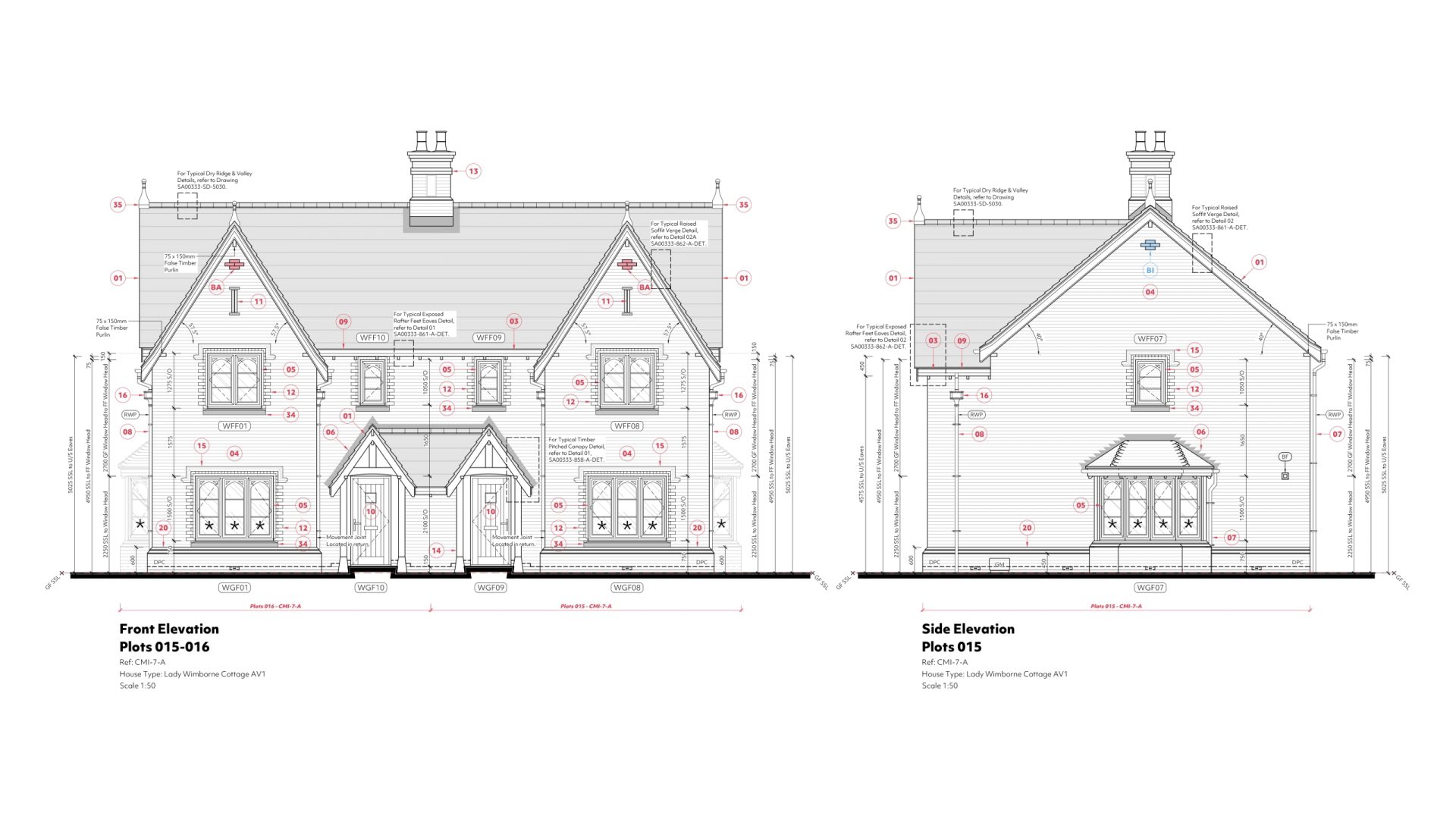
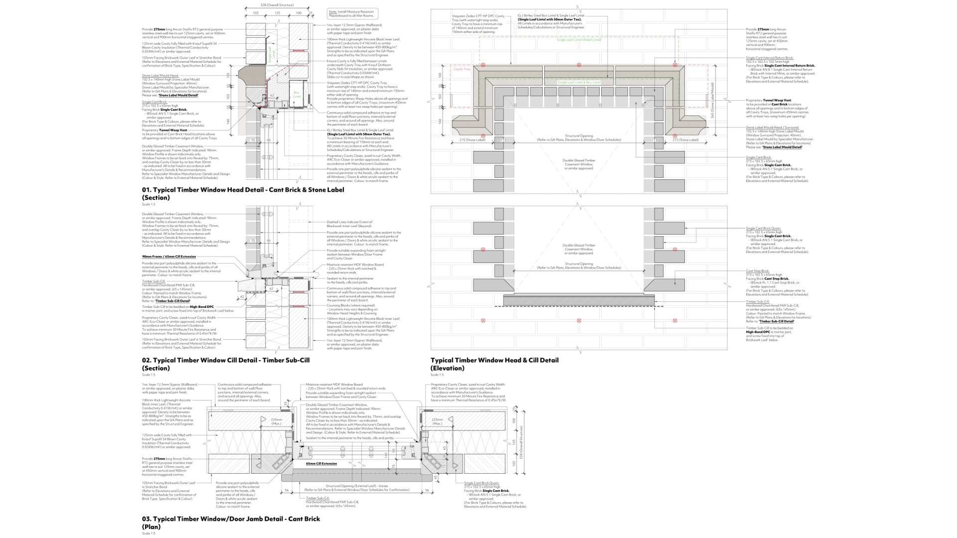
Bridging contemporary design with heritage character, this 285-home development in Dorset includes a high-end traditional parcel of 32 dwellings that complements the surrounding conservation area of Canford Magna. Our detailed technical drawings captured every traditional feature, from gothic window detailing to intricately crafted brick chimneys.








