





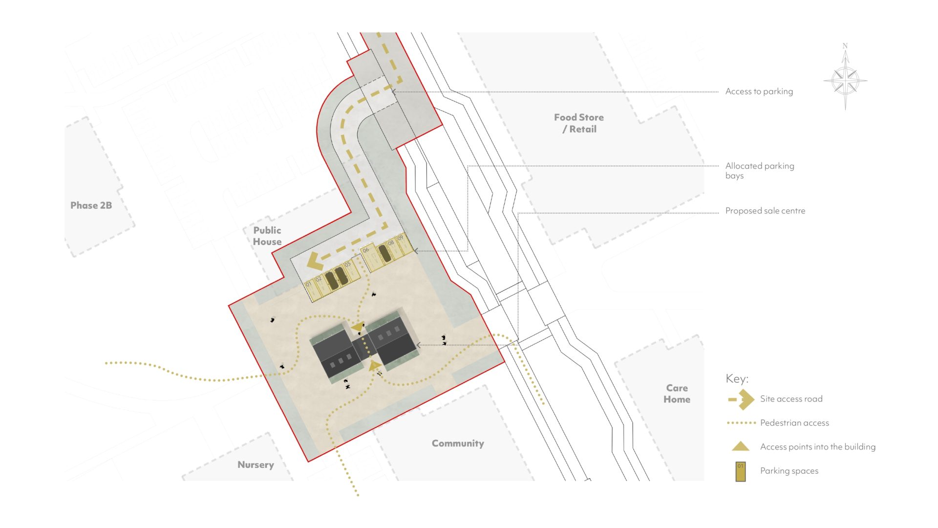
Part of the Kings Barton Farm development, this distinctive sales centre for CALA takes inspiration from the site’s industrial barn character. Two gabled forms connected by a glass link create a bold architectural statement, which we developed from concept to completion.





