



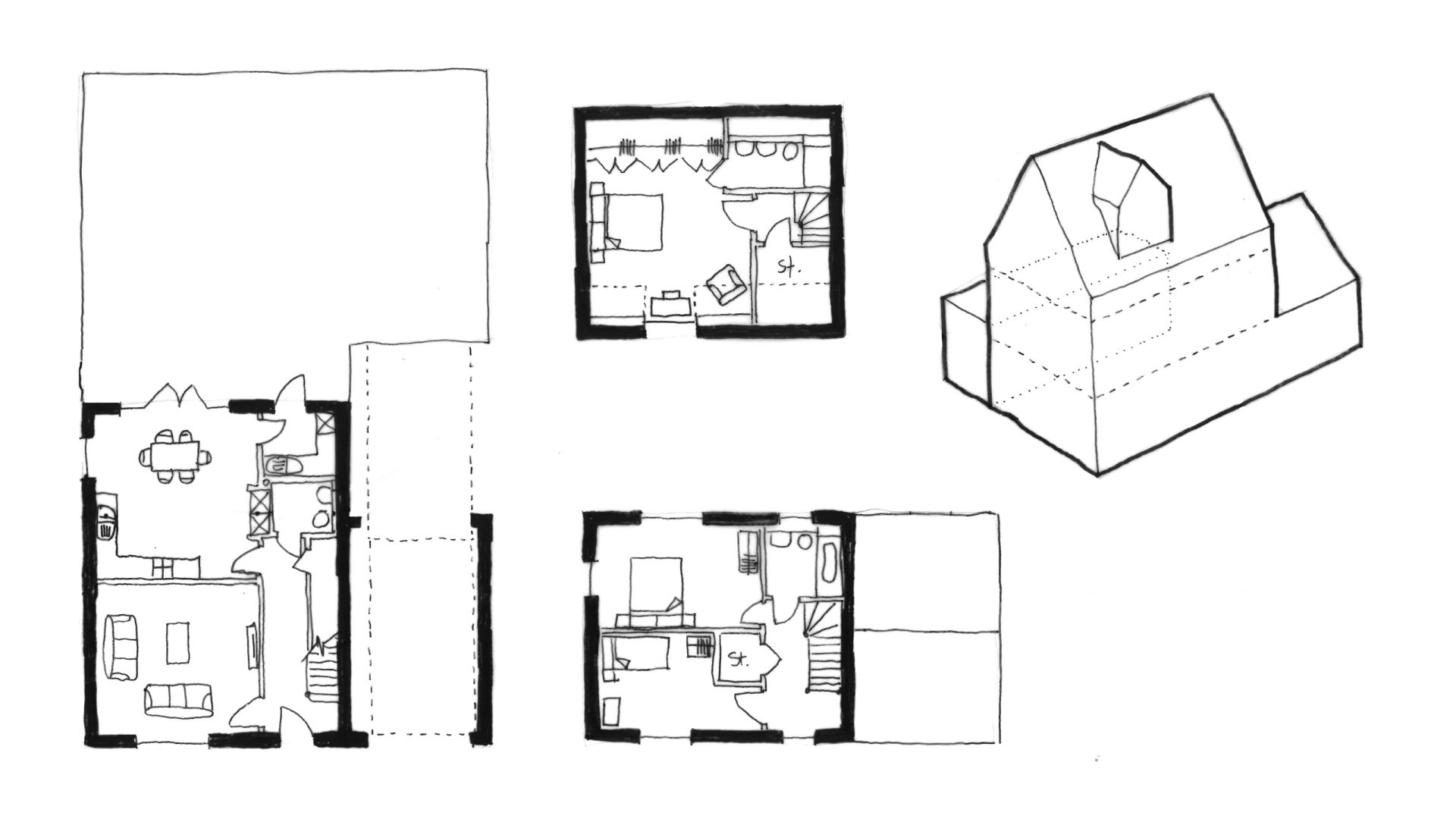
Everything starts with a sketch, an initial idea, a vision for something original. We test design ideas and convey early proposals through considered sketches, which enable the clients to quickly see their projects come to life.




Everything starts with a sketch, an initial idea, a vision for something original. We test design ideas and convey early proposals through considered sketches, which enable the clients to quickly see their projects come to life.