









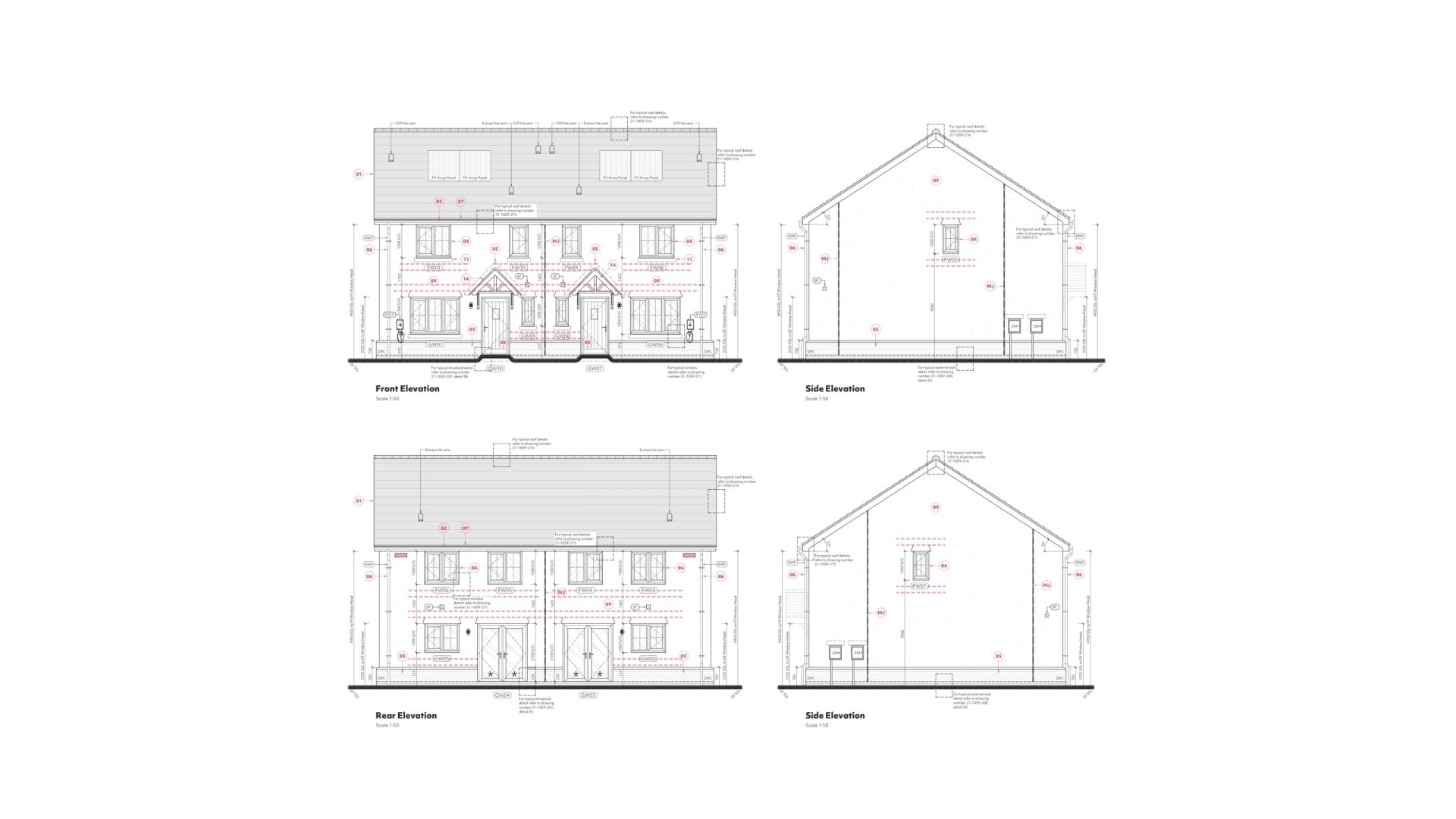
Nine new homes extend the Essex village of Steeple Bumpstead with traditional character. Working with Aviary Homes, we delivered a detailed technical drawing package that helped achieve the development’s high-quality elevational finish.










Nine new homes extend the Essex village of Steeple Bumpstead with traditional character. Working with Aviary Homes, we delivered a detailed technical drawing package that helped achieve the development’s high-quality elevational finish.